Projektpläne

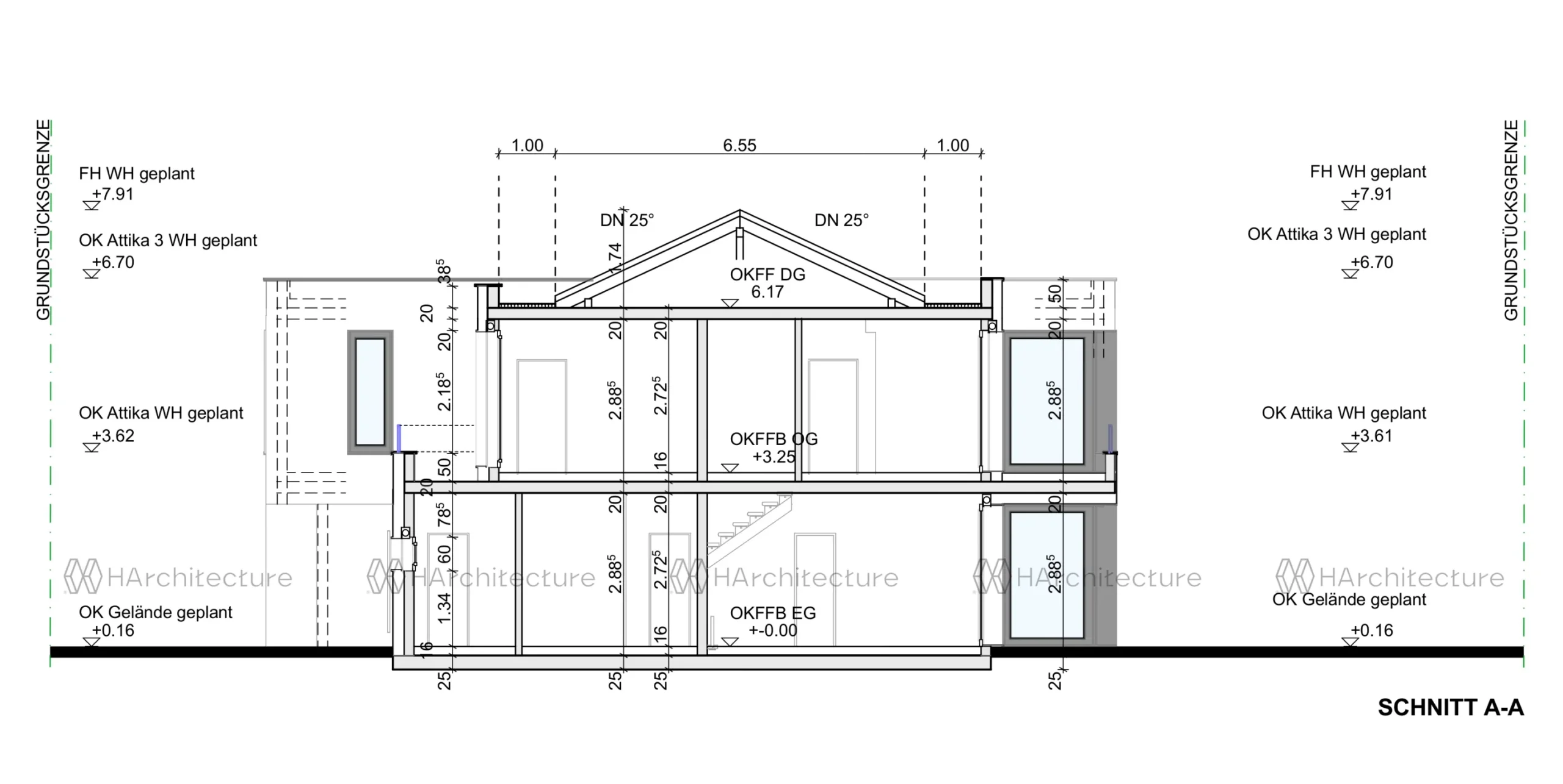
Projekt Pläne – Entwurfsplanung eines Einfamilienhauses nach den Anforderungen des Kunden. Für jeden Plan werden 3 Grundrisse, 1 Schnitt, 4 Ansichten und 2 3D-realistische Visualisierungen geliefert. Neben der Entwicklung von Entwurfsplanungen bieten wir auch die Digitalisierung von vermessenen Papierplänen oder Handskizzen an, in denselben Abgabeformaten. Für einige Kunden erstellen wir nur 3D-Modelle von Handskizzen oder Papierplänen.

Von älteren Gebäuden existieren oft nur handgezeichnete Papierpläne. Bei Umbauten, Renovierungen oder Sanierungen fehlen dem Architekten somit die digitalen CAD-Pläne als Grundlage für die Projektierung. Das Scannen dieser Papierpläne, die Vektorisierung und die manuelle Nachbearbeitung sind sehr aufwändig, ineffizient und liefern oft unbefriedigende Ergebnisse.

Bei der Digitalisierung von bestehenden Papierplänen zeichnen wir sämtliche Pläne für Sie (Grundrisse, Fassaden, Schnitte, Detailpläne usw.) nach. Die Digitalisierung findet auch in der Projektierungsphase beim Architekten Anwendung. Anhand von Projekt- bzw. Handskizzen können wir Ihre Projekte in Ihrem CAD-Programm neu zeichnen. Diese CAD-Pläne dienen als Grundlage für die Erstellung der Baugesuchspläne und/oder Werkpläne.

Natürlich aktualisieren wir sämtliche Planänderungen aufgrund der Kundenwünsche während der Projektierungsphase. Wir orientieren uns dabei anhand eines mitgelieferten Musterprojektes, um die Baugesuchspläne möglichst identisch an Ihr Planlayout anzupassen.

Schreiben Sie uns oder
Besuchen Sie uns

Wir freuen uns auf Ihre Anfrage